CASA M.F A PORT DE LA SELVA - 1998
Col·laboradors : Javier Lopez del Castillo, arq. Joan Pere, apar.

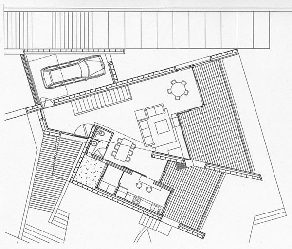
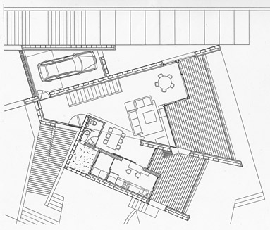
La casa es va concebre a partir d'un mur paral·lel al llindar del solar amb una clara funció de protecció del vent. A partir d'aquest, es genera una composició de ventall construint dos murs més, convergents, amb una posició més oberta i enmarcant el paisatge.

A causa del desnivell del solar, el programa es resol en dos nivells, tenint sempre present la traça vertical dels murs amb l'interès d'aconseguir una visió d'espai únic i generador de tot el projecte.